TONY AYAS GARCIA - AYMAR ARQUITECTURA
TONY AYAS GARCIA - AYMAR ARQUITECTURA   

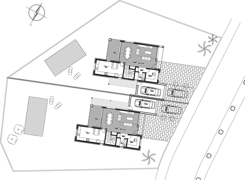
CASAS ADOSADAS EN TIANA -BCN-

CONJUNTO DE 2 VIVIENDAS ADOSADAS DE 3 PLANTAS + PISCINA PRIVADA

Año Construcción: 2.006

Promotor: KIBOU CONSULTING S.L.

Sup. Construida: 500,00 m2

 

 

TONY AYAS-AYMAR ARQUITECTURA

Gral Riera 1 piso 4D, 07003-Palma (Mallorca)

TEL. 971.752.093

MOVIL 687.717.349

tony.ayas@gmail.com

Versión para imprimir | Mapa del sitio
© TONY AYAS

Página web creada con IONOS Mi Web.